Zoek binnen de gids:

Rhapsody in West is een prijswinnend en duurzaam[1] woningbouwproject met een hoge dichtheid[2] een complexe locatie pal aan de drukke Ring A10 in Amsterdam. Desondanks is er veel ruimte voor groen en water. Een onherbergzame plek met een massieve geluidsdruk is in 2019 omgevormd tot een gewilde stadsoase. Hoe is dat gelukt? .
Om deze video te bekijken, gebruik de QR
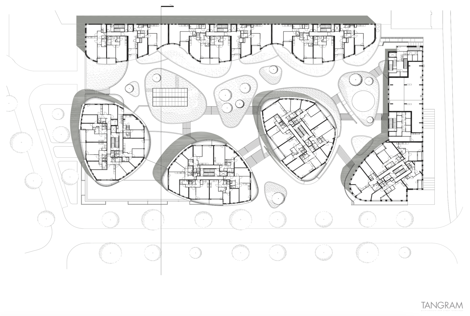
Rhapsody in West is een ensemble van gebouwen bestaat uit een rug-gebouw (A10-zijde), een zijgebouw (Bos en Lommerweg) en drie vrijstaande appartementengebouwen op een verhoogd maaiveld met daaronder een parkeergarage, bergingen en technische voorzieningen. Het rug- en zijgebouw hebben een afschermende werking waardoor het verkeersgeluid maar in beperkte mate doordringt in het binnengebied. Het binnengebied is publiek toegankelijk en heeft een grote ruimtelijkheid door de ronde vormen van de gebouwen en het trapsgewijs oplopende maaiveld. De ronde vormen zorgen voor verstrooiing van het (verkeers)geluid zodat er een (relatief) verstild binnengebied is ontstaan. Het oplopende maaiveld zorgt ervoor dat er op oorhoogte steeds wat anders te beleven is.
Uniek is dat de buurtbewoners in een vroeg stadium zijn betrokken bij de ontwikkeling. Dat heeft onder meer geleid tot de Kolenkitkas in de tuin, een transparante publieke ontmoetingsruimte beheerd en gebruikt door bewoners uit de directe omgeving en verderop (zie afbeelding).
Planning: Vroeg in het ontwerpproces gemaakte fundamentele keuzes met een positieve uitwerking op het geluidsklimaat betalen zich later uit (hier: ronde gevels, positionering bouwvolumes, getrapt oplopend maaiveld). w/p>
Innovatief ontwerp: Om deze lawaaiige plek bewoonbaar te maken heeft de architect een hoog bouwvolume geplaatst aan de A10 en de Bos en Lommerweg met eenzijdig, op de binnentuin georiënteerde woningen. Het restgeluid dat nog van de twee verkeersaders het binnenterrein binnenkomt, wordt verstrooid door de afgeronde vormen van de bouwvolumes en geabsorbeerd door de open grond in de binnentuin. Omdat het geveloppervlak is geminimaliseerd[3] en er geen parallelle gevels zijn tussen de woontorens, kan geluid niet blijven weerkaatsen.
Combineren: Bij het ontwerp van de buitenruimte zijn meerdere functies slim gecombineerd zodat ze elkaar versterken.
Drie voorbeelden:
1. De openbare binnentuin met vijvers is niet alleen een rustige en aangename plek om te verblijven, maar biedt ook een sociale ontmoetingsplek voor de buurt. De binnentuin is bovendien vanuit meerdere richtingen bereikbaar. Met doorsteekjes zijn voor voetgangers nieuwe routes gecreëerd waardoor hier altijd wel een paar mensen onderweg zijn, wat de sociale veiligheid ten goede komt.
2. De open grond van de tuin absorbeert door haar porositeit niet alleen overmatig en laagfrequent geluid maar fungeert tevens als een spons bij stortbuien.
3. De ronde gebouwen zijn niet alleen akoestisch gunstig (ze verstrooien het geluid), maar ook energetisch en ruimtelijk.[4] Omdat ze minder oppervlak hebben dan een rechthoekig gebouw van dezelfde inhoud is er minder kans op warmteverlies terwijl de ronde vormen ervoor zorgen dat de tussenruimte als ruimer wordt ervaren dan ze geometrisch is.




Welke ontwerpstrategiën zijn hier met succes toegepast:
Bouwvolumes positioneren meer concreet
Rondingen toepassen in de bouwvolumes
Geveldetaillering
Open bodem
Hoogteverschillen
Bron van deze tekst: